
The City of Mesquite, Texas, has partnered with SRB Mesquite, LLC, to launch a major redevelopment of the former Sears property at Town East Mall. This transformative project proposes to reposition the site for the next 50 years, enhancing Mesquite’s reputation as a retail and entertainment destination. The site development lead for SRB Mesquite, LLC, is Four Rivers Capital.
Benefits to Residents and Community:
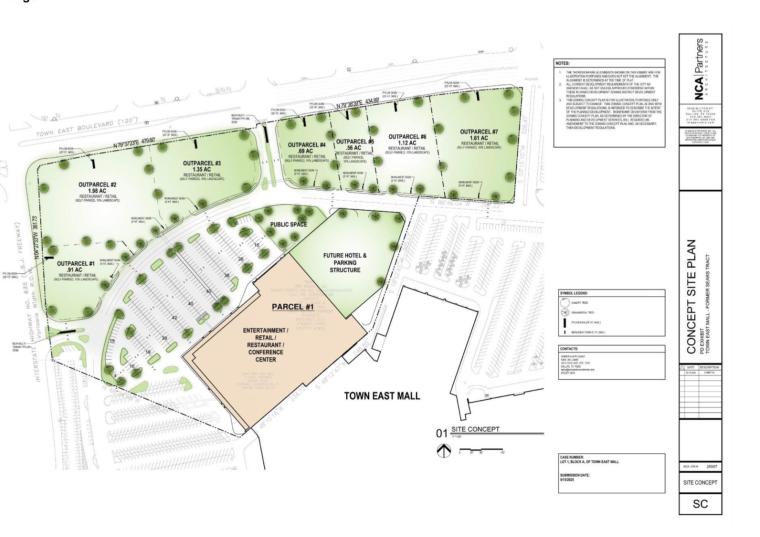
- Revitalized Landmark: The former Sears, which closed in 2021 as the last Sears in North Texas, is planned to be redeveloped into a vibrant new destination.
- New Entertainment Anchor: the agreement requires that by 2026, the project will secure a 10-year lease for a 58,000-square-foot Main Event entertainment center on the first floor of the old Sears building.
- Modern Amenities: Plans include a concept depicting new restaurants, enhanced landscaping, public green space, and walkways, with amenity choices such as bike racks, seating areas, and public art.
- Economic Growth: Once fully activated, the redevelopment is proposed to generate $550,000 in annual tax revenue totaling at least $5.5 million over 10 years—with potential for much more as new restaurants and retailers open.
- Future Expansion: The zoning allows for the potential development of a hotel and conference center, further positioning Mesquite as a regional destination, and setting the stage for a phase two redevelopment of the site.
To ensure success, the City Council has approved both a Chapter 380 Agreement and Planned Development Zoning Ordinance at the October 6, 2025, City Council meeting. Both documents set the bar for aesthetics and features which enhance both uses within the site and the appearance of the Town East Mall area. The Chapter 380 Agreement provides a performance-based sales tax rebate—meaning the developer only receives incentives if capital investment thresholds and new taxable sales meet growth targets.
The rebate is estimated at $200,000 annually for 10 years, based upon minimum projected sales by new brands and only applies to sales tax. These rebates are unrelated to the upcoming property tax vote.
“This project has been a long time in the making, and we are excited to see Town East Mall evolve for the future. This agreement amplifies Mesquite’s role as a regional retail hub while creating new places for families to live, play, and even work. This is a win for our residents and our community’s future,” said Mayor Dan Alemán, Jr.
Town East Mall has been a cornerstone of Mesquite since 1971, serving as the city’s largest taxpayer and a symbol of Mesquite’s retail strength. This redevelopment marks the beginning of its next chapter as a modern, mixed-use destination.